聯系人:陳錫烽
手 機:13815981616 15295238777
電 話:0523-84569016 84553205
傳 真:0523-84561364
地 址:江蘇省泰州市靖江市城北園區富前路88號
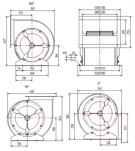
4-79、4-2×79系列離心通風機 |
![]() |
一、4-79系列離心通風機的用途
本公司生產的4-79型離心通風機,具有風量大、噪聲低、性能平穩等特點;適用于一般工礦企業及大型建筑的通風排塵及換氣,氣體內不許有粘性物質,所含塵土及硬質顆粒物不大于150mg/m3,在氣體溫度不超過80℃環境下既可作輸入氣體,也可作輸出氣體。
二、4-79系列離心通風機的形式
風機可制成右旋轉和左旋轉兩種型式,從電動機一端正視,葉輪順時針旋轉,稱為右旋轉風機,以“右”表示;葉輪逆時針旋轉,稱為左旋轉風機,以“左”表示。

式中:
Q-流量(m3/h);
N-功率(kw);
ρ-密度(kg/m3);
P-全壓(Pa);
η-效率(%)
n-轉速(r/min);
注:注腳符號“2”表示已知的性能及其關系參數,注腳符號“1”表示所求的性能參數。標準進氣狀態為:大氣壓力Pt=101325Pa ,進氣溫度ta=20℃ ,相對濕度Φ=50% ,空氣密度ρ=1.2kg/m3。
五、4-79系列離心通風機的訂貨須知
訂貨時,請注明風機的使用環境,要求的壓力、流量、風機的機號、旋轉方向、出風口角度、傳動方式、葉輪轉速及電機型號等。
如有特殊要求,我廠可根據客戶的要求特殊設計和制造。
注:風機的性能參數及結構尺寸,本公司若有變更,恕不另行通知。
不同型號詳細參數表:


[上一個: T4-72系列離心通風機 ]
[下一個: Y5-48系列離心通風機 ]







